Ricerca rapida
Tipologia
Categoria
Città
Zona
Cerca
Codice
Prezzo (da - a)
-
Mq (da - a)
-
Ordine

V001369 - Appartamento trilocale mai abitato

Appartamento, 4 o più locali, 3 locali

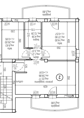
Situato nel recente quartiere residenziale posto a ridosso del centro di Correzzola, disponibile appartamento trilocale realizzato pochi anni fa ma mai abitato. L'immobile è all'interno di un complesso di quattro unità con accesso dal vano scale comune. L'appartamento internamente si compone di ingresso con ampia zona giorno open space, disimpegno, due camere da letto, una matrimoniale ed una singola ed un bagno finestrato. La zona giorno e la camera matrimoniale, sono servite entrambe da comodi terrazzi.
L'immobile dispone inoltre al piano terra di un garage doppio e di un posto auto esclusivo all'interno del residence condominiale. L'intero complesso si affaccia su un ampio e curato parco condominiale.
Non ci sono spese condominiali.
Immobile libero da subito.
Prezzo non trattabile !

Visita il nostro sito:
http://www.l-intesa.it
e seguici su Facebook
https://www.facebook.com/lintesagenzia/

N.B.: per motivi di privacy l'indirizzo e il puntatore nella mappa sono puramente indicativi e non corrispondono esattamente all'ubicazione dell'immobile.

L' Intesa Servizi Immobiliari tratta le seguenti zone: Piove di Sacco, Brugine, Polverara, Arzergrande, Legnaro, Bovolenta, Pontelongo, Sant'Angelo di Piove di Sacco, Campolongo Maggiore, Correzzola, Saonara e Codevigo.
Prezzo
90.000 EUR
Mq
90
Classe
C
Locali
3
Camere
2
Bagni
2
Box
2
Mq Box
30
Posti auto
2
Mq Giardino
2500
Stato Immobile
Nuovo
Grado
Medio
Posizione
Centro
Panorama
Vista Aperta
Piano
Secondo
Orientamento
Est Sud Ovest
Totale Piani
Tre
Lati Liberi
3
Giardino
Comune
Arredi
Non Arredato
Tipo Soggiorno
Soggiorno
Tipo Cucina
Cucinotto
Riscaldamento
Autonomo
Tipo Riscaldam.
Caldaia a Condensazione
Tipo Impianto
Radiatori
Fonte Energetica
Metano
Acqua Calda
Autonoma
Raffrescamento
Split
Infissi
Legno Doppio Vetro
Serramenti
Nuovo
Persiana
Tapparella PVC
Pavim. Giorno
Gres Porcellanato
Pavim. Notte
Parquet
Pavim. Cucina
Gres Porcellanato
Pavim. Bagno
Ceramica
Accesso Disabili
Nessuna Barriera
Accesso interno disabili
Parziale
Isolamento
Presente
Isolamento termico
Cappotto esterno
Isolamento acustico
Isolamento pareti
Spessore cappotto (cm)
10
Accessori
Aria Condizionata, Cancello Elettrico, Doppi Vetri, Impianto Satellitare, Parco Condominiale, Passaggio Pedonale, Porta Blindata, Rete Dati, Video Citofono, Zanzariere
MAPPA
Via Giuseppe Garibaldi 0, Correzzola (PD)
Cookie preference