Ricerca rapida
Tipologia
Categoria
Città
Zona
Cerca
Codice
Prezzo (da - a)
-
Mq (da - a)
-
Ordine

V001281 - CHALET AL GREZZO AVANZATO E TABIA'

Villa, Baita, Rustico/Casale

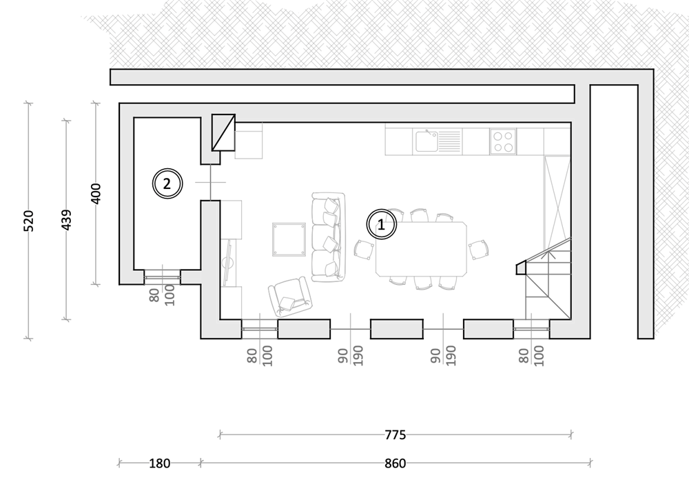
Affacciato alla vallata di Sega Digon proponiamo Chalet di nuova costruzione disposto su due livelli e completamente travato a vista in entrambi i livelli ed esternamente rivestito in pietra. L'immobile è completamente esposto al sole, vista mozzafiato sulle cime, prato e vallata sul fronte mentre sul retro vi è il bosco di proprietà di 20.000 mq. Lo chalet è servito da strada privata, su un lato la proprietà ha come confine un ruscello e sempre all'interno della stessa è presente una fonte d'acqua risorgiva oltre che ad un sentiero naturalistico che la collega con il paese di Candide.
A lato dello chalet vi è un tabià in corso di ricostruzione, ad oggi è stato realizzato il piano seminterrato e parte del piano terra. Questo tabià potrà essere ricostruito disposto su 4 livelli, con una superficie totale di circa 500 mq. Soluzione ideale per creare un compendio immobiliare sia ad uso residenziale oppure con destinazione ricettiva come B&B.
Immobili disponibile da subito.
POSSIBILITA' DI ULTIMARE ENTRAMBI GLI IMMOBILI CON LA DETRAZIONE FISCALE PER RISTRUTTURAZIONE CORRISPONDENTE AL 50% e 65% DEI COSTI SOSTENUTI.
Per qualunque ulteriore informazione contattare Thomas 3933326460.

Visita il nostro sito:
http://www.l-intesa.it
e seguici su Facebook
https://www.facebook.com/lintesagenzia/
Prezzo
220.000 EUR
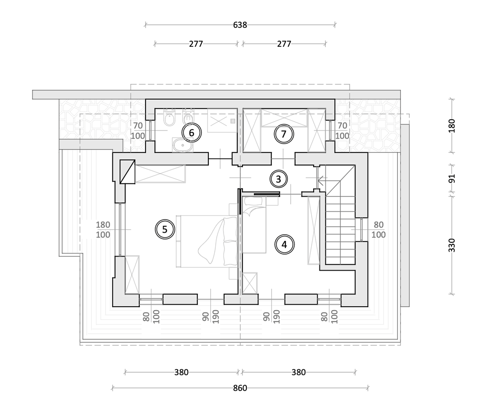
Mq
100
Classe
NA
Locali
4
Camere
2
Bagni
2
Box
1
Mq Box
10
Posti auto
2
Mq Giardino
20000
Stato Immobile
In Costruzione
Grado
Signorile
Posizione
Montagna
Panorama
Vista Monti
Piano
Piano Terra
Orientamento
Nord Ovest Sud Est
Lati Liberi
4
Giardino
Privato
Arredi
Non Arredato
Tipo Soggiorno
Soggiorno
Tipo Cucina
Angolo Cottura
Riscaldamento
Autonomo
Tipo Riscaldam.
Caldaia
Tipo Impianto
Radiatori
Fonte Energetica
GPL
Acqua Calda
Autonoma
Raffrescamento
Split
Infissi
PVC Triplo Vetro
Serramenti
Nuovo
Persiana
Oscurante Legno
Pavim. Giorno
Gres Porcellanato
Pavim. Notte
Gres Porcellanato
Pavim. Cucina
Gres Porcellanato
Pavim. Bagno
Gres Porcellanato
Accesso Disabili
Nessuna Barriera
Accessori
Aria Condizionata, Camino, Doppi Vetri, Passaggio Pedonale, Video Sorveglianza
MAPPA
Via Caduti di Cima Vallona , Comelico Superiore (BL)
Cookie preference