Ricerca rapida
Tipologia
Categoria
Città
Zona
Cerca
Codice
Prezzo (da - a)
-
Mq (da - a)
-
Ordine

V001379 - QUADRIFAMILIARE D'ANGOLO

Villa, Porzione Villa, Villa Bifamiliare, Villetta schiera

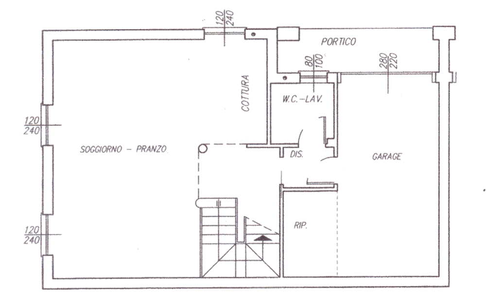
All'interno di un recente contesto residenziale a ridosso del centro proponiamo porzione di quadrifamiliare caratterizzata dalle ampie metrature interne e da eleganti finiture. L'immobile dispone di ingresso indipendente, scoperto di proprietà e si sviluppa internamente su tre livelli. Si compone di ingresso soggiorno con angolo cottura, disimpegno, bagno e garage (collegato alla parte del disimpegno). al piano primo troviamo un ampio disimpegno, un bagno, tre camere da letto di cui una doppia, due camere matrimoniali di cui la padronale dispone di bagno in camera. Entrambe le camere matrimoniali dispongono di terrazzo. Al piano superiore è presente un grande ambiente openspace predisposto per essere suddiviso in altre due camere da letto e un ulteriore bagno. Quest'ultimo livello è mansardato e completamente travato a vista.
L'immobile si contraddistingue per le pregiate finiture e la qualità dei materiali usati e nonostante l'immobile sia usato è in condizioni eccelse non necessita di nessun tipo di intervento. L'immobile dispone di impianto di allarme, impianto di condizionamento in tutti gli ambienti, portoncino blindato, zanzariere e tanti altri accessori. Immobile libero da subito.

N.B.: per motivi di privacy l'indirizzo e il puntatore nella mappa sono puramente indicativi e non corrispondono esattamente all'ubicazione dell'immobile.

Visita il nostro sito:
http://www.l-intesa.it
e seguici su Facebook
https://www.facebook.com/lintesagenzia/

L' Intesa Servizi Immobiliari tratta le seguenti zone: Piove di Sacco, Brugine, Polverara, Arzergrande, Legnaro, Bovolenta, Pontelongo, Sant'Angelo di Piove di Sacco, Campolongo Maggiore, Correzzola, Saonara e Codevigo.
Prezzo
270.000 EUR
Mq
180
Classe
B
Locali
5
Camere
5
Bagni
3
Box
1
Mq Box
20
Posti auto
1
Mq Giardino
200
Stato Immobile
Buono
Grado
Signorile
Posizione
Centro
Panorama
Vista Giardino
Orientamento
Nord Est
Totale Piani
Tre
Lati Liberi
2
Giardino
Privato
Arredi
Non Arredato
Tipo Soggiorno
Salone
Tipo Cucina
Angolo Cottura
Riscaldamento
Autonomo
Tipo Riscaldam.
Caldaia a Condensazione
Tipo Impianto
Radiatori
Fonte Energetica
Metano
Acqua Calda
Autonoma
Raffrescamento
Split
Infissi
Legno Doppio Vetro
Serramenti
Ottimo
Persiana
Oscurante Legno
Pavim. Giorno
Gres Porcellanato
Pavim. Notte
Moquette
Pavim. Cucina
Gres Porcellanato
Pavim. Bagno
Gres Porcellanato
Accesso Disabili
Nessuna Barriera
Accesso interno disabili
Pieno accesso
Isolamento
Presente
Isolamento termico
Cappotto esterno
Isolamento acustico
Isolamento pareti
Spessore cappotto (cm)
8
Destinato a residenti
No
Impianto d’irrigazione
No
VMC
No
Accessori
Antifurto, Aria Condizionata, Armadio a muro, Cancello Elettrico, Doppi Vetri, Impianto Satellitare, Lavanderia, Passaggio Automobilistico, Passaggio Pedonale, Porta Blindata, Rete Dati, Video Citofono, Zanzariere
MAPPA
via europa , Piove di Sacco (PD)
Cookie preference