Ricerca rapida
Tipologia
Categoria
Città
Zona
Cerca
Codice
Prezzo (da - a)
-
Mq (da - a)
-
Ordine

VEN1371_8B - Appartamento trilocale nuovo

Appartamento, 4 o più locali, 3 locali

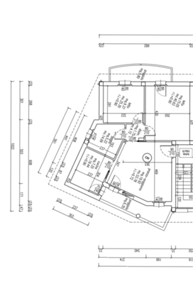
Situato in un recente quartiere residenziale posto nel centro di Correzzola, disponibile appartamento trilocale esposto su tre lati, posto al secondo ed ultimo piano in un vano scale di sole 4 unità.
L'immobile è stato costruito alcuni anni fa ma, non è mai stato ultimato e di conseguenza mai stato abitato.
La palazzina si affaccia su un ampio e curato parco condominiale. L'appartamento internamente si compone di ingresso con ampia zona giorno open space (con possibilità di separare la parte la cucina) servita da terrazzo, disimpegno, due camere da letto di cui una matrimoniale con terrazzo, una singola e un bagno di notevoli dimensioni.
L'immobile dispone di un garage doppio e di un posto auto esclusivo all'interno del residence condominiale. Dispone di Isolamento a cappotto, doppia predisposizione dell'aria condizionata, predisposizione impianto d'allarme, portoncino blindato e caldaia a condensazione.
Non ci sono spese condominiali.
Trattandosi di un immobile in corso di ultimazione verrà data la possibilità all'acquirente di scegliere tutte le pavimentazioni, i rivestimenti dei bagni dei bagni e le porte interne. Immobile libero da subito.
Prezzo non trattabile !

Visita il nostro sito:
http://www.l-intesa.it
e seguici su Facebook
https://www.facebook.com/lintesagenzia/

N.B.: per motivi di privacy l'indirizzo e il puntatore nella mappa sono puramente indicativi e non corrispondono esattamente all'ubicazione dell'immobile.

L' Intesa Servizi Immobiliari tratta le seguenti zone: Piove di Sacco, Brugine, Polverara, Arzergrande, Legnaro, Bovolenta, Pontelongo, Sant'Angelo di Piove di Sacco, Campolongo Maggiore, Correzzola, Saonara e Codevigo.
VIDEO
Prezzo
110.000 EUR
Mq
90
Classe
B
Locali
3
Camere
2
Bagni
1
Box
2
Mq Box
30
Posti auto
2
Mq Giardino
2500
Stato Immobile
Nuovo
Grado
Signorile
Posizione
Centro
Panorama
Vista Aperta
Piano
Secondo
Orientamento
Nord Est Sud
Totale Piani
Tre
Lati Liberi
3
Giardino
Comune
Arredi
Non Arredato
Tipo Soggiorno
Soggiorno
Tipo Cucina
Semi Abitabile
Riscaldamento
Autonomo
Tipo Riscaldam.
Caldaia a Condensazione
Tipo Impianto
Radiatori
Fonte Energetica
Metano
Acqua Calda
Autonoma
Raffrescamento
Split
Infissi
Legno Doppio Vetro
Serramenti
Nuovo
Persiana
Tapparella PVC
Pavim. Giorno
Gres Porcellanato
Pavim. Notte
Personalizzato
Pavim. Cucina
Gres Porcellanato
Pavim. Bagno
Personalizzato
Accesso Disabili
Nessuna Barriera
Accesso interno disabili
Ingressi adattati
Isolamento
Presente
Isolamento termico
Cappotto esterno
Isolamento acustico
Isolamento pareti
Spessore cappotto (cm)
10
Destinato a residenti
No
Accessori
Aria Condizionata, Cancello Elettrico, Doppi Vetri, Impianto Satellitare, Parco Condominiale, Passaggio Pedonale, Porta Blindata, Rete Dati, Video Citofono, Zanzariere
MAPPA
Via Cavalieri di Vittorio Veneto 47, Correzzola (PD)
Cookie preference