Ricerca rapida
Tipologia
Categoria
Città
Zona
Cerca
Codice
Prezzo (da - a)
-
Mq (da - a)
-
Ordine

V001380 - Porzione di Quadrifamiliare

Porzione Villa, Villetta schiera, Villa, Porzione di Casa

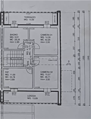
In nuovo quartiere residenziale adiacente al centro paese proponiamo porzione di quadrifamiliare in corso di costruzione. L'immobile ha delle linee moderne e si caratterizza dagli ampi spazi interni. Si compone di una zona giorno open space di 45 mq (con possibilità di realizzare una cucina abitabile) disimpegno, bagno, lavanderia e garage direttamente collegato all'abitazione. La zona giorno si affaccia su un pergolato di quasi 20 mq, ottimo da utilizzare nel periodo estivo.
Al piano primo troviamo un disimpegno, un ampio bagno e tre camere da letto di cui due matrimoniali e una doppia che si affacciano su due spaziosi terrazzi.
La casa dispone di scoperto sia sul fronte che sul retro.
Verrà realizzata utilizzando le più evolute tecnologie costruttive e con materiali di pregio, viene dato inoltre la possibilità all'acquirente di personalizzare tutte le finiture interne.
Disporrà di impianto di riscaldamento a pavimento mediante pompa di calore, impianto fotovoltaico, serramenti in pvc, impianto vmc, predisposizione ai climatizzatori e tanti altri accessori.
Disponibili ultime due porzioni una di centro e una di testa al prezzo di Euro 320.000 .

N.B.: per motivi di privacy l'indirizzo e il puntatore nella mappa sono puramente indicativi e non corrispondono esattamente all'ubicazione dell'immobile.

Visita il nostro sito:
http://www.l-intesa.it
e seguici su Facebook
https://www.facebook.com/lintesagenzia/

L' Intesa Servizi Immobiliari tratta le seguenti zone: Piove di Sacco, Brugine, Polverara, Arzergrande, Legnaro, Bovolenta, Pontelongo, Sant'Angelo di Piove di Sacco, Campolongo Maggiore, Correzzola, Saonara e Codevigo.
Prezzo
290.000 EUR
Mq
140
Classe
A4
Locali
5
Camere
3
Bagni
2
Box
1
Mq Box
20
Posti auto
1
Mq Giardino
150
Stato Immobile
In Costruzione
Grado
Signorile
Posizione
Centro
Panorama
Vista Aperta
Piano
Piano Terra
Orientamento
Nord Ovest Sud Est
Totale Piani
Due
Lati Liberi
2
Giardino
Privato
Arredi
Non Arredato
Tipo Soggiorno
Salone
Tipo Cucina
Abitabile
Riscaldamento
Autonomo
Tipo Riscaldam.
Pompa di Calore
Tipo Impianto
Pavimento
Fonte Energetica
Fotovoltaico
Acqua Calda
Autonoma
Raffrescamento
Split
Infissi
PVC Doppio Vetro
Serramenti
Nuovo
Persiana
Tapparella PVC
Pavim. Giorno
Gres Porcellanato
Pavim. Notte
Gres Porcellanato
Pavim. Cucina
Gres Porcellanato
Pavim. Bagno
Gres Porcellanato
Accesso Disabili
Nessuna Barriera
Accesso interno disabili
Pieno accesso
Appartamenti
Uno
Isolamento
Presente
Isolamento termico
Cappotto esterno
Isolamento acustico
Isolamento pareti
Spessore cappotto (cm)
14
Destinato a residenti
No
Impianto d’irrigazione
No
VMC
Si
Accessori
Antifurto, Aria Condizionata, Cassaforte, Cancello Elettrico, Impianto Fotovoltaico, Impianto Satellitare, Lavanderia, Passaggio Automobilistico, Passaggio Pedonale, Porta Blindata, Tapparelle Elettriche, Video Citofono, Zanzariere
MAPPA
Via Vittorio Emanuele III , Codevigo (PD)
Cookie preference